-
閥體精密鑄造
閥體全部為精密鑄造閥體,二次拋丸處理、外觀精細,無沙眼、每批鑄件都有爐號標志,方便生產跟蹤
-
重量大
同等口徑重量重于其他廠家
-
實心球體
球體為實心球體不銹鋼材質,增強耐磨性
-
標準試壓
每臺閥門出廠均按照國家標準做殼體、密封雙層壓力檢測
-
層層質檢
從毛坯到成品包裝出廠每個環節層層質檢
-
-
-
-
產品優點
產品介紹
般德閥門品牌產品鑄鋼球閥Q41F-16/25/40/63C產品配置:閥體:WCB 球體:不銹鋼實心球 密封:PTFE。本閥門適用于市政建設、水利工程、電力、給排水、水處理、石油等工況環境。
產品參數
| 執行標準 | 名稱 | 設計及制造 | 結構長度 | 試壓標準 | 法蘭標準 | |||||
| 參照標準 | GB/T 12237-2007 | GB/T 12221-2005 | GB/T 13927-2008 | GB/T 9113-2010 | ||||||
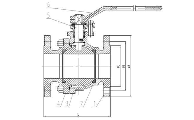
| 主要零部件信息 | 名稱 | 1-閥體 | 2-閥座密封圈 | 3-球體 | 4-閥蓋 | 5-閥桿 | 6-手柄 | |||
| 材質及說明 | WCB | PTFE | 不銹鋼 | WCB | 201 | 201 | ||||
| 尺寸信息 | SIZE | PN16 | PN25 | |||||||
| DN | NPS | L | ΦA | ΦB | ΦC | L | ΦA | ΦB | ΦC | |
| 25 | 1'' | 150 | 115 | 85 | 68 | 150 | 115 | 85 | 68 | |
| 32 | 1 1/4'' | 165 | 140 | 100 | 78 | 165 | 140 | 100 | 78 | |
| 40 | 1 1/2'' | 180 | 150 | 110 | 88 | 180 | 150 | 110 | 88 | |
| 50 | 2'' | 200 | 165 | 125 | 102 | 200 | 165 | 125 | 102 | |
| 65 | 2 1/2'' | 220 | 185 | 145 | 122 | 220 | 185 | 145 | 122 | |
| 80 | 3'' | 250 | 200 | 160 | 138 | 250 | 200 | 160 | 138 | |
| 100 | 4'' | 280 | 220 | 180 | 158 | 280 | 235 | 190 | 162 | |
| 125 | 5'' | 320 | 250 | 210 | 188 | 320 | 270 | 220 | 188 | |
| 150 | 6'' | 360 | 285 | 240 | 212 | 360 | 300 | 250 | 218 | |
| 200 | 8'' | 400 | 340 | 295 | 268 | 400 | 360 | 310 | 278 | |
| 250 | 10'' | 450 | 405 | 355 | 320 | 450 | 425 | 370 | 335 | |
語言:簡體中文
English
Русский
簡體中文












